Продается 2-х комн. квартира, 42.8 кв.м., 2/2 эт
| Стоимость | 4 350 000 |
|---|---|
| Ремонт | Косметический |
| Балкон | Нет |
| Доля в квартире | Нет |
| Онлайн показ | могу провести |
| Статус Недвижимости Авито | Квартира |
| Право собственности | Посредник |
| Тип парковки | Открытая во дворе |
| Способ связи avito | По телефону и в сообщениях |
| Комнат в квартире | 2 |
| Площадь, кв.м. | 42.8 |
| Площадь кухни, кв.м. | 8 |
| Этаж | 2 |
| Этажность | 2 |
| Материал стен | Деревянный |
| Населенный пункт | Ханты-Мансийск |
|---|---|
| Улица | улица Крупской |
| Номер дома | 20 |
Продается двухкомнатная квартира в деревянном доме общей площадью 42,8 кв.м.
О доме: деревянный дом, расположен в центральной части гopoдa, cocтoит из 2 этaжeй, 1977 г. постройки, без лифта.
В шаговой доступности: Калинина, Пионерская, Рознина, Мира.
Инфраструктура: продуктовые и хозяйственные магазины, аптека, Окружная клиническая больница, остановка общественного транспорта, ТД "Виктор".
Общая площадь: 42,8 кв.м.
Кухня 8 кв.м.
Ремонт: выполнен косметический ремонт.
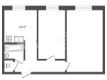
Планировка: Все помещения правильной формы. просторная входная зона. Кухняя 8 кв.м. с необходимой мебелью и техникой. Две комнаты, раздельный санузел.
Особенности квартиры: Удобная транспортная развязка, до центра города пешком 10 минут.
Бонус для покупателя: мебель и техника по договоренности.
Варианты приобретения: возможна покупка с использованием наличных денежных средств/ипотечных средств/материнского капитала/семейной ипотеки.
НАШИ ПРЕИМУЩЕСТВА:
Работаем с ИПОТЕКОЙ, материнским капиталом и опекой.
Полное юридическое оформление сделки мы берем на себя.
Показы в любое удобное для вас время по договоренности.
Квартиру можно приобрести в ипотеку или использовать материнский капитал/субсидию! В нашей компании есть ипотечный брокер, оказывающий весь комплекс услуг по приобретению квартиры в ипотеку. Мы берем всю рутинную работу по оформлению документации на себя!
Хотите посмотреть на квартиру в живую? Отлично, мы организуем показ!

















