Продается однокомнатная квартира в центральной части города.
В шаговой доступности: улицы: Рознина, Комсомольская.
Инфраструктура: хорошая транспортная развязка. Рядом располагается остановка общественного транспорта, трансагенство, продуктовые магазины, ТЦ "Гостиный двор", кафе и рестораны, детские сады №20 "Сказка", №1 "Колокольчик", Мамина радость, школы №1, №11, филиал поликлиники.
Квартира арсполагается в монолитном доме 1997 года постройки. Придомовая территория: открытая парковка во дворе. тихие и спокойные соседи.
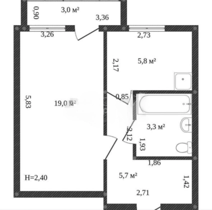
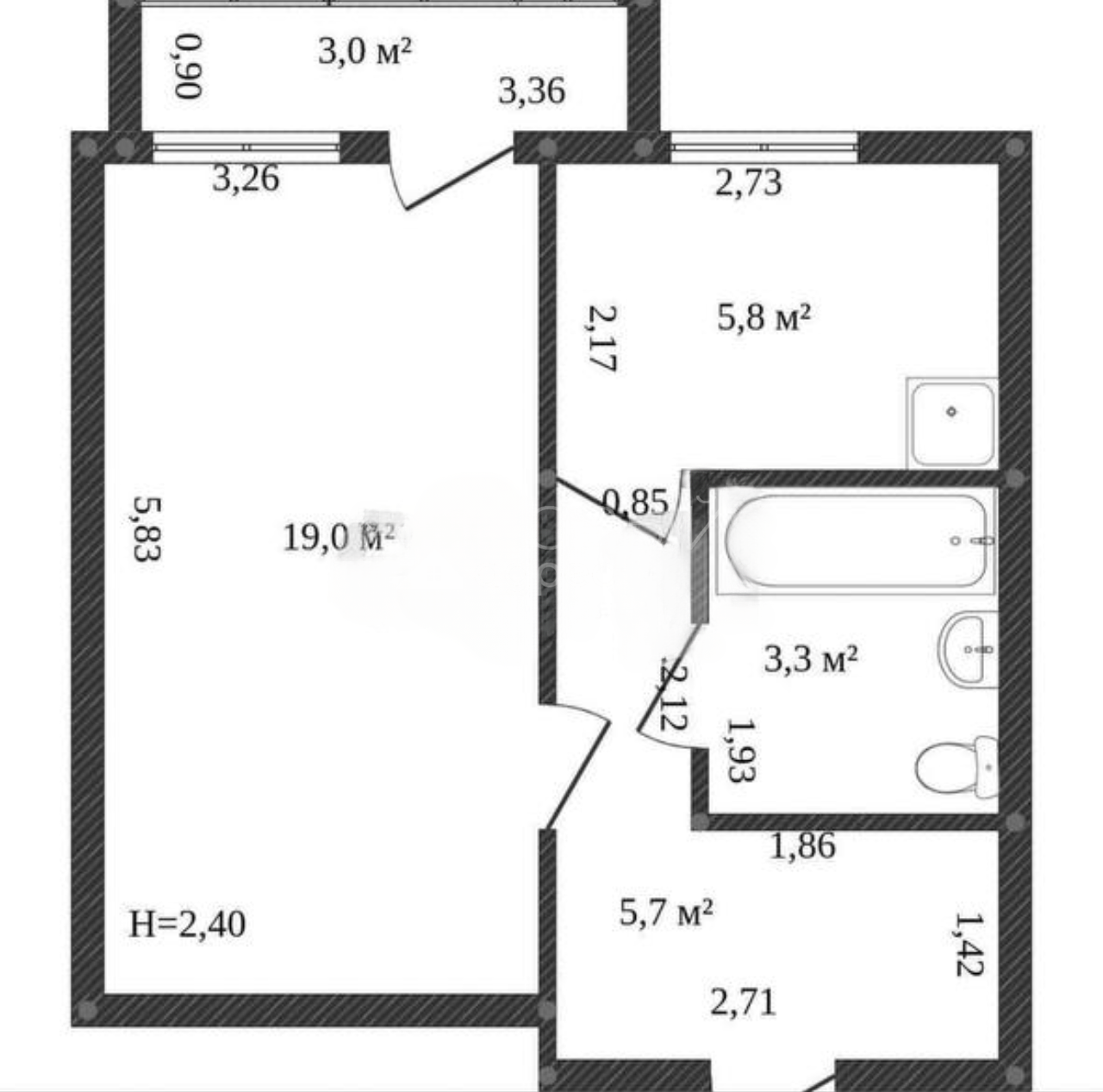
Общая площадь: 30,4 кв.м.
Кухня 6 кв.м.
Балкон: 3,0 кв.м.
Ремонт: выполнен косметический ремонт.
Планировка: Очень комфортная планировка, все помещения правильной формы. Небольшая кухня 6 кв.м. Просторная комната 19 кв.м. с выходом на балкон 3 кв.м. Совмещенный санузел.
Бонус для покупателя: после продажи остается мебель и техника.
Варианты приобретения: возможна покупка с использованием наличных денежных средств/ипотечных средств/материнского капитала/семейной ипотеки.
НАШИ ПРЕИМУЩЕСТВА:
Работаем с ИПОТЕКОЙ, материнским капиталом и опекой.
Полное юридическое оформление сделки мы берем на себя.
Показы в любое удобное для вас время по договоренности.
Квартиру можно приобрести в ипотеку или использовать материнский капитал/субсидию! В нашей компании есть ипотечный брокер, оказывающий весь комплекс услуг по приобретению квартиры в ипотеку. Мы берем всю рутинную работу по оформлению документации на себя!
Хотите посмотреть на квартиру в живую? Отлично, мы организуем показ!
НОВЫЙ АДРЕС - с нами быстро, выгодно, надежно !!!
Позвоните и запишитесь на просмотр, завтра этого варианта может уже и не быть!















